Dom i działka 40 arów
Wodzisław Śląski Pokaż na mapie ›
Ogłoszenie archiwalne Wygasło: Środa, 12 Listopad, 2025 15:42
349 900 zł
3069 zł/m2
Szczegóły ogłoszenia
- Kategoria: Domy / Sprzedaż
- Powierzchnia:114 m2
- Liczba pokoi:5 i więcej pokoi
- Pow. działki:4025 m2
- Rynek:Wtórny
- Stan:Do gruntownego remontu
- Forma kuchni:Oddzielna
- Typ domu:Bliźniak
- Sprzedaż:Pośrednik
- Inf. dodatkowe:Pom. użytkowe, Piwnica, Garaż
- Cena: 349 900 zł / 3069 zł/m2
- Ulica: bogumińska
Opis oferty
Dom znajduje się w Wodzisławiu Śląskim w dzielnicy Turzyczka.Działka o powierzchni 40 arów.
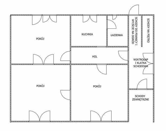
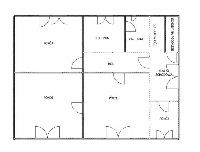
W domu na dwóch piętrach znajduje się 7 pokoi.
Dom ogólnie składa się z:
- parteru: 3 pokoje, kuchnia, łazienka, korytarz;
- piętra: 4 pokoje, kuchnia, łazienka (puste pomieszczenie), korytarz.
- duży strych na który prowadzą schody takie same jak na piętro
- budynek jest także w całości podpiwniczony, a w ogrodzie znajduje się budynek gospodarczy.
Lokalizacja nieruchomości pozwala na szybki dojazd do centrum Wodzisławia Śląskiego, natomiast dojazd do zjazdu na A1 to około 15 minut.
Budynek do remontu, można wykorzystać dotacje na termomodernizacje i dzięki temu znacznie obniżyć koszty,
Sprawdź zainteresowanie tym ogłoszeniem
Wyświetlenia
Data dodania
Ostatnio widziany
Obserwujących
Wysłane zapytania
Odsłony telefonu
Powiadom o podobnych ogłoszeniach
Lokalizacja: Wodzisław Śląski
Kategoria: Nieruchomości » Domy » Sprzedaż
Cena: od 297500 zł do 402500 zł Powierzchnia : od 97 m2 do 131 m2
Chcę otrzymywać powiadomienia o nowych ofertach
To ogłoszenie jest archiwalne i może być nieaktualne.
- Wypromuj ogłoszenie
- Zgłoś naruszenie
- Edytuj/usuń ogłoszenie
- Udostępnij ogłoszenie
- Dodaj na Facebook





























